Gartenplannung Fam B. Möhrendorf
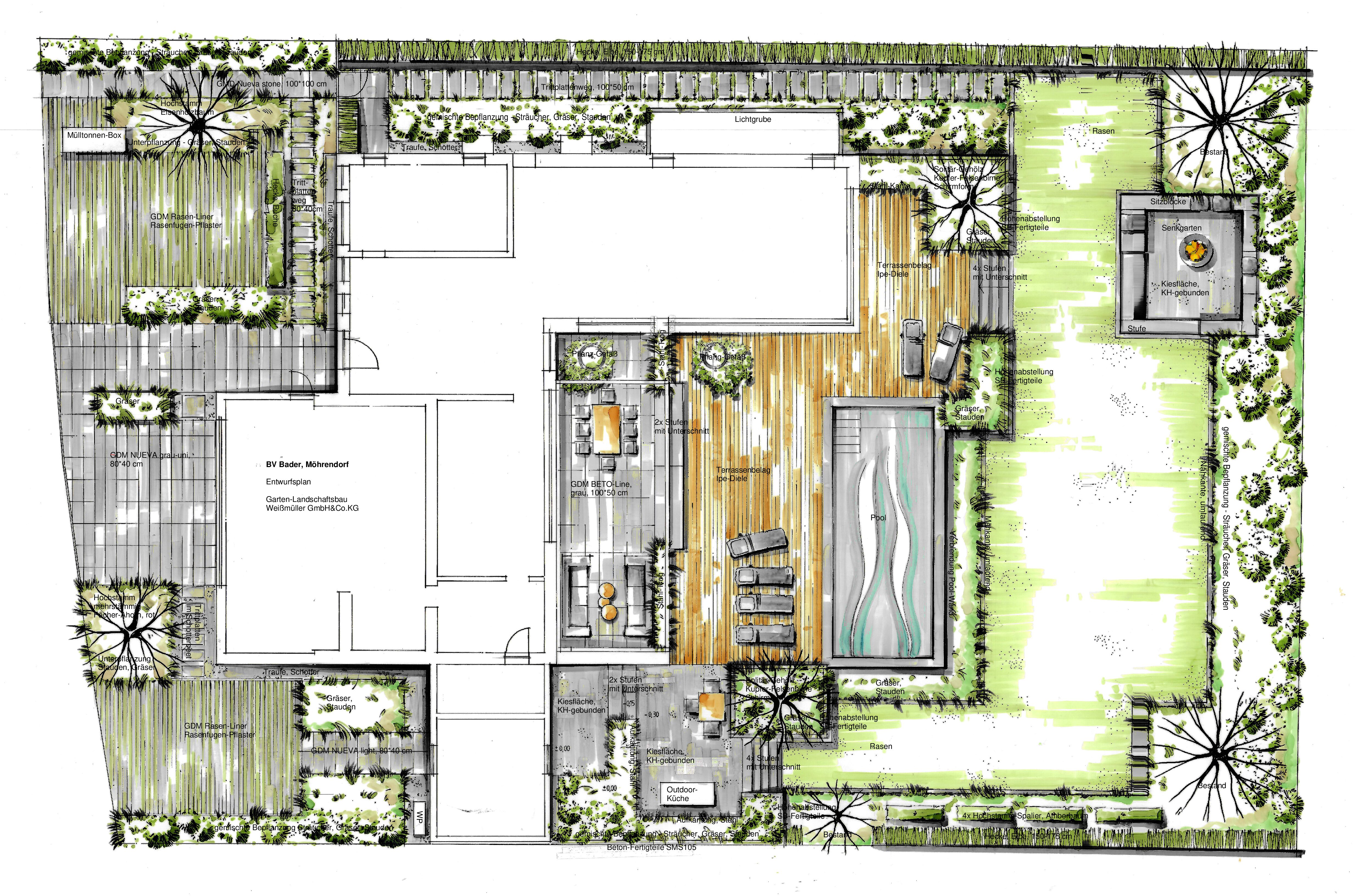
Für die Familie B. übernahmen wir die vollständige Konzeptentwicklung und Entwurfsplanung ihres Projekts. Dazu gehörten Entwurf, Visualisierungen, Handskizzen und Layout, um die geplante Gestaltung frühzeitig anschaulich zu vermitteln. So wurde eine solide Grundlage für die Umsetzung einer funktionalen, ästhetischen und auf die Bedürfnisse der Familie abgestimmten Außenanlage geschaffen.


